Eladó Téglalakás ingatlan - Székesfehérvár
Ingatlan azonosító: L-004671
« Vissza a listáhozTéglalakás
Székesfehérvár, Belváros és környéke
Fejér
52 900 000,- Ft
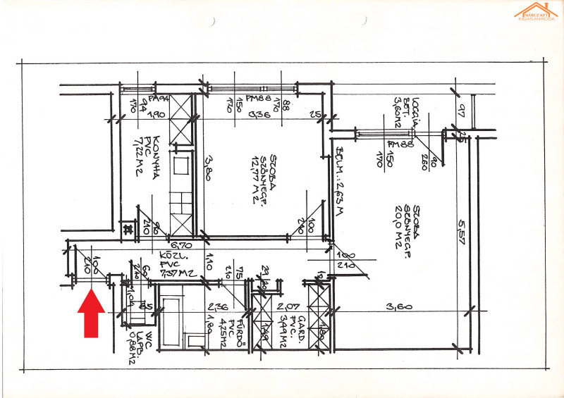
L-004671. Munkácsy Mihály utcában, a belváros szélén frekventált, csendes zöldövezetben, közkedvelt helyen, 4 emeletes épületben 4. emeleti 59 nm-es, erkélyes, tégla – gázkonvektor fűtéses, felújítandó lakás eladó.
A lakás 2 szobás, a fürdő és a wc külön helységben található. A lépcsőház átesett a panelprogramon, ablakai újak műanyag hőszigeteltek. A pinceszinten közös tárolók találhatók szintenként, ahol minden lakás használhatja a rá eső területet.
A falak tapétásak és festettek, szobák és a közlekedő burkolata szőnyegpadló, a fürdő, wc, konyha járólappal burkolt. Parkolás az épület körül fizetős övezetben megoldható.
Az közelben zöldövezeti park, iskola, óvoda, gyógyszertár, több bolt és hipermarket található. A lakás a szerződéskötést követően birtokba vehető, akár kiadható.
Az ingatlan elhelyezkedése, remek elosztása, valamint, a környék infrastruktúrája miatt befektetésnek is kiváló.
Jelenleg, megbízható bérlő lakja a lakást több éve, aki szívesen szerződne az új tulajdonossal amennyiben befektetési célú a vásárlás.
Eladási irányár: 52,9 M Ft
Ha felkeltette érdeklődését, hívja irodánkat bizalommal, éljen ingyenes, személyre szabott hitelügyintézés szolgáltatásunkkal. Segítünk továbbá adásvételhez szükséges ügyvédi közreműködésben, energetikai tanúsítvány, valamint értékbecslés elkészítésében.
For English details please send us a message or an e-mail, thank you
Székesfehérvár településen, 59 m2 -es Téglalakás Eladó
| Alapterület: | 59 m2 | Állapot: | Felújításra szoruló |
| Telek: | Fűtés: | Gázkonvektor | |
| Szobák: | 2 db | Emelet: | 4. emelet |
| Félszobák: | Parkolás: | utcán fizetős övezet |
Kapcsolat: Koncz András , Tel.: 06 (20) 933-3750
E-mail: lakas@marcz.hu - Märcz Ingatlaniroda









