Eladó Téglalakás ingatlan - Székesfehérvár
Ingatlan azonosító: L-004692
« Vissza a listáhozTéglalakás
Székesfehérvár, Felsőváros
Fejér
114 900 000,- Ft
L-004692. Modern, értékálló lakás saját tárolóval fedett autó beállóval, Székesfehérvár Felsővárosában – ideális családnak vagy befektetésnek.
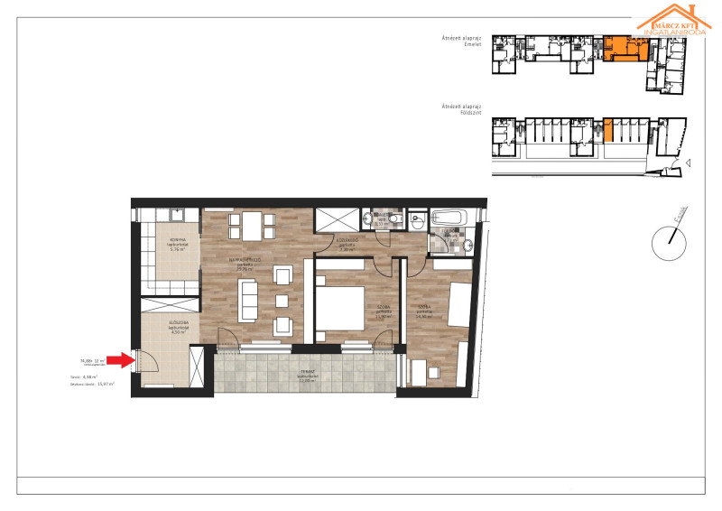
Székesfehérvár kedvelt városrészében, Felsővárosban, a Móri úton kínálunk megvételre egy 2019-ben épült, 11 lakásos társasházban található, kiváló állapotú, jól kiadható és hosszú távon is értékálló lakást.
Az ingatlan főbb jellemzői:
Az ingatlan 74,88 m² hasznos alapterülettel rendelkezik, melyhez egy 12 m²-es, jól használható erkély kapcsolódik. Elrendezése praktikus és keresett: amerikai konyhás nappali + 2 külön nyíló hálószoba, így ideális választás családoknak, illetve bérbeadásra is.
Műszaki tartalom és komfort:
A társasház Porotherm 30-as téglából épült, 10 cm külső hőszigeteléssel, korszerű, energiatakarékos kialakítással. A lakásban háromrétegű nyílászárók találhatók redőnnyel és szúnyoghálóval. A fűtést és a melegvíz-ellátást gázkazán biztosítja radiátoros hőleadással, a nappaliban Gree 3,5 kW-os hűtő-fűtő klíma gondoskodik a komfortérzetről. A fürdőszobában törölközőszárítós radiátor került beépítésre. Az elektromos kapacitás 3×16 Amper, a lakás riasztórendszerrel felszerelt.
Beépített értékek:
A vételár tartalmazza a gépesített, beépített konyhabútort, valamint az egyedileg kialakított gardróbszekrényt, ami azonnali költözést vagy bérbeadást tesz lehetővé további beruházás nélkül.
Parkolás és tárolás:
Az eladási ár része egy 16 m²-es fedett gépkocsibeálló, valamint az ahhoz tartozó 4,38 m²-es saját tároló. A társasház térkövezett belső kocsibehajtóval rendelkezik, továbbá a hátsó, zárt udvarban egy további autó számára is biztosított a parkolás.
Befektetési és családi szempontból is ideális választás:
A fiatal építésű társasház, az alacsony fenntartási költségek, a keresett elrendezés és a komplett felszereltség miatt az ingatlan könnyen és jól kiadható, ugyanakkor kényelmes, hosszú távú otthont is biztosít egy család számára. A környék infrastruktúrája kiváló, a belváros és a főbb közlekedési útvonalak gyorsan elérhetők.
Amennyiben egy stabil értéket képviselő, azonnal hasznosítható vagy költözhető ingatlant keres Székesfehérváron, ez a lakás kiváló lehetőség.
Eladási Irányár: 114,9 M Ft
Ha felkeltette érdeklődését, hívja irodánkat bizalommal, éljen ingyenes, személyre szabott hitelügyintézés szolgáltatásunkkal. Segítünk továbbá adásvételhez szükséges ügyvédi közreműködésben, energetikai tanúsítvány, valamint értékbecslés elkészítésében.
For English details please send us a message or an e-mail, thank you
Székesfehérvár településen, 75 m2 -es Téglalakás Eladó
| Alapterület: | 75 m2 | Állapot: | Újszerű |
| Telek: | Fűtés: | Cirkó fűtés | |
| Szobák: | 1 db | Emelet: | 1. emelet |
| Félszobák: | 2 db | Parkolás: | fedett beálló a zárt udvaron |
Kapcsolat: Koncz András , Tel.: 06 (20) 933-3750
E-mail: lakas@marcz.hu - Märcz Ingatlaniroda






.jpg)